家づくりは株式会社ENTEX

注文住宅HOME > イベント情報一覧 > イベント詳細情報

【兵庫県・尼崎市大庄西町】E-HOUSE(いい家イーハウス)より 新築戸建 完成見学会のご案内のお知らせ

  • 駐車場有り

イベントの内容・みどころ

尼崎市大庄西町・新築戸建 完成見学会のご案内

尼崎市大庄西町にて建設中でした新築物件が、いよいよ令和8年3月に完成を迎えます 。3月27日(金)より現地の内覧が可能となりますので、ぜひこの機会に最新の設備や間取りをご体感ください。

 

【物件のポイント】

 

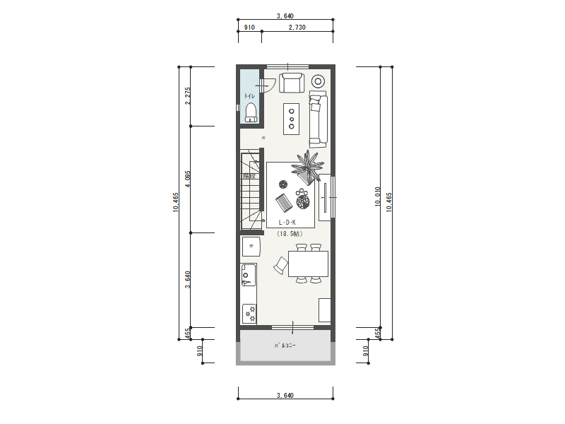
広々としたLDK: 家族が集まるメインスペースは18.5帖のゆとりある広さを確保しています 。

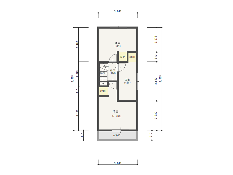
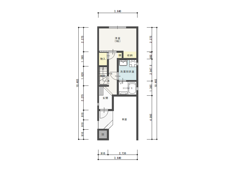
4LDKの機能的な間取り: 各階に洋室を配置し、プライベートな空間も大切にした設計です 。

好立地: 阪神本線「尼崎センタープール前」駅より徒歩8分と、通勤・通学に便利な環境です 。

月々の支払い: 103,157円(頭金0円・ボーナス払い0円の場合)から検討可能です 。

 

■ 物件概要

 

所在地: 尼崎市大庄西町4丁目10-17

交通: 阪神本線「尼崎センタープール前」駅 徒歩8分

間取り: 4LDK(木造3階建て)

販売価格: 3,700万円(税込)

 

■ 見学予約について

 

混雑を避け、ゆっくりとご覧いただくため「完全予約制」にてご案内しております。

見学をご希望の場合は、本メールへの返信、またはお電話にてご希望の日時をお知らせください。

お客様のご来場を、スタッフ一同心よりお待ち申し上げております。

 

 

イベント概要

開催日時 2026年3月28日~
開催店舗 尼崎市大庄西町4丁目10-17
予約締め切り 2026-05-31
イベントジャンル 完成見学会
特長
  • 駐車場有り
参加費 無料
問い合わせ先 E-HOUSE(いい家イーハウス)


アクセス

開催場所: 尼崎市大庄西町4丁目10-17



各種イベント・見学会予約フォーム

.number


ご相談・イベント来場予約

参加予約イベント 主催:    株式会社ENTEX
イベント名: 新築戸建 完成見学会のご案内
日時

※ご予約はイベント開催日の前日17:00までにお願いします。
直前の場合、予約を受けつけられない場合がございます。

※イベント開催日以外でもご希望を受け付けます


第1希望: 時  分  から 時  分 
第2希望: 時  分  から 時  分 
ご質問 イベントで質問したい事柄などございませんか?
※複数選択可
その他お問い合わせ

お問い合わせ情報

個人情報の保護に関しましては、個人情報保護方針をご覧下さい。
の項目は必須項目です。お問い合わせ、ご依頼に必要な情報を入力して下さい。

お名前必須     姓 名
フリガナ必須  セイ メイ (全角カナ)
住所必須 郵便番号
例)290-0056
都道府県 (全角かな)
例)千葉県
市区町村、その他住所 (全角かな)
例)市原市五井
番地、マンション名・部屋番号等 (全角かな)
例)2672-105

※住所の不備が多くなっております。ご入力の際に確認をお願いします。

建築予定地必須 土地:  (土地をお持ちでない場合は希望地を選択して下さい。)
都道府県:  市区町村:
TEL必須 --(半角数字)
Emailアドレス必須
(半角英数字/携帯メールアドレス可)
Emailアドレス必須
(再入力)
勤務先  (全角かな) 家族人数 人 (半角数字)
年齢 才 (半角数字)
建築予定時期
建築予算
こちらの会社と既にお話しをされていますか? 該当欄にチェックお願いします
その他ご要望

入力情報についてご確認ください

当フォーム入力者情報とあなたとのご関係 必須
  •    
    ご関係と入力者様のお名前をご記入下さい
    (例)友人 住宅 太郎
注意事項必須 ※ご記入内容に誤りはございませんか?
イベント感想掲載
※イベント参加の感想を送って頂いた方には謝礼を進呈致します。
※感想を送る方法についての詳細は、事務局よりご連絡いたします。

個人情報について

個人情報必須 個人情報の保護に関しましては、個人情報保護方針をご覧下さい。

ページのトップに戻る